Anfang September war ich noch einmal in meiner ehemaligen Gemeinde in Voerde am Niederrhein. Nach vier Jahren Bauzeit wurde an diesem Wochenende das neue Gemeindezentrum der. Ev. Kirchengemeinde Götterswickerhamm mit einem Gottesdienst eingeweiht. Ich wollte dabei sein, hatte ich seinerzeit noch den Architektenwettbewerb mit organisiert. Wenige Wochen nach dem Preisgericht fiel dann die Entscheidung, dass ich die Gemeinde verlasse. Den Siegerentwurf fand ich so beeindruckend, dass ich von Anfang an gesagt habe, wenn das Haus fertig ist, will ich es einmal von innen sehen.
Nun saß ich also im Gottesdienst vor dem großen Fenster, nachdem ich als „Ehrengast“ in die erste Reihe neben den Bürgermeister gebeten worden war und schaue ins Grüne hinaus. Es hat etwas gedauert, bis bei mir einsickerte: Dieses neue Haus steht auf der Wiese, wo einst das alte Jugendheim stand. Du guckst auf die Hecke, hinter der sich der Teich verbirgt, den du vor 25 Jahren mit angelegt hast. Und hinter dem Teich steht noch das alte Pfarrhaus, in dem du lange auf diesem Gelände gelebt, gearbeitet und gestritten hast.
Ja, gestritten. Denn die Vorgeschichte dieses Hauses war mit viel Streit verbunden. Weit mehr als zehn Jahre wurde darum gerungen, ob die Gemeinde ein neues Haus überhaupt braucht, ob es an dieser Stelle stehen sollte und wenn ja, ob die evangelische Familienbildungsstätte hier mit einziehen soll.
Wenn ich alle persönlichen Interessen und Animositäten, all die bösen Worte und Briefe, die schlaflosen Nächte und hitzigen Diskussionen mal beiseite lasse, dann ging es im Kern um zwei Vorstellungen oder Konzepte, wie Kirche ihrem Auftrag, das Evangelium in die Welt zu tragen besser gerecht werden kann.
Die einen sagen: Kirche wird ihrem Auftrag dann gerecht, wenn sie Räume schafft, in denen sich Menschen treffen können, um sich außerhalb der Welt zu besinnen, zu reflektieren, zu beten, gemeinsam das Wort der Schrift zu lesen und Gottesdienst zu feiern. Kirche ist notwendiger Rückzugort innerhalb der Welt, die aber immer wieder außen vor bleiben muss, um die Stimme des Evangeliums hören zu können und sich auf das Leben als Christin, als Christ draußen in der Welt vorbereiten zu können.
Die anderen sagen: Kirche wird ihrem Auftrag dann gerecht, wenn sie Räume schafft, in denen sich Menschen treffen können, um hier miteinander zu leben, zu sprechen, zu feiern. Es ist ein besonderer Ort innerhalb der Welt, der dadurch gekennzeichnet ist, dass „Kirche“ drauf steht. Hier finden alle möglichen Versammlungen statt, die zumeist davon geprägt sind, dass sie offen sind für alle. Natürlich gibt es geschlossene Aktionen wie zB den Konfirmandenunterricht. Aber in der Regel steht das Haus allen offen. Das Evangelium wird mal thematisiert, mal steht es unausgesprochen im Hintergrund und wird vom Rahmen gehalten.
Beide Konzepte verstehen sich als einladende Kirche: Die einen laden zu einem notwendigen Rückzug ein, um sich auf das „Eigentliche“ zu konzentrieren (Bonhoeffer sprach hier vom Arkanum oder der Arkandisziplin, die es zu bewahren gilt, bei aller Weltorientierung des christlichen Lebens); die anderen laden zu offener Begegnung ein, weil die Verkündung des Evangeliums immer ein offener Prozess von Beziehungen in Begegnungen darstellt. Für beide Konzepte gibt es reichlich biblische Belege: erstere argumentieren zB damit, dass auch Jesus sich immer wieder zurückgezogen hat, letztere weisen darauf hin, dass Jesu Gleichnisse und sein Reden und Handeln von größtmöglicher Offenheit geprägt war.
Beide Konzepte gehören zur Kirche hinzu, bedingen einander. Dialog braucht auch das Arkanum, aber das Arkanum bleibt blass ohne den Dialog. So weit so gut. Spannend wird es nun, wenn eine Gemeinde sich entschließt und die Ressourcen hat, noch einmal ganz neu anzusetzen und ein Gemeindehaus bauen zu wollen und zu können. Welchem Konzept soll die Architektur dienen? Hier entzündete sich in meiner ehemaligen Gemeinde der erbitterte Streit.
Verkürzt gesagt ging es am Ende (und allein dieses Ende zog sich über Jahre hin) um die Frage: Bauen wir ein Haus mit oder ohne evangelische (!) Familienbildungsstätte? Wollen wir vornehmlich unter uns bleiben und streben daher ein geschlossenes Konzept an oder wollen wir von vornherein Bildungsangebote von Schwangerschaftsgymnastik über Säuglingsschwimmen, Yoga und Autogenes Training in ein offenes Konzept integrieren? Anders gesagt: Wie wollen wir die Begegnung mit Menschen unterschiedlicher Herkunft und Interessen in der Architektur abbilden? Am Ende durchgesetzt hat sich das offene Konzept mit Integration der Familienbildungsstätte. Zu Recht.
Es läge nahe, hier überspitzt zu argumentieren: Der Kirchraum ist der Ort für das Arkanum, das Gemeindehaus der Ort die weltoffene Begegnung. Aber das greift zu kurz. Gerade der Wunsch nach offenen Kirchen zeigt an, dass Menschen ganz gleich welcher Herkunft, Religion und Geschichte in Kirchräumen Orte der Begegnung suchen. Für die einen Orte, an denen Vertrautes auffindbar und erlebbar ist und bleibt; für andere Orte, an denen Unvertrautes, Fremdes auffindbar und erlebbar wird. Umgekehrt finden auch in Gemeindehäusern Begegnungen statt, die eher dem „Eigentlichen“ dienen als dem Gespräch mit der Welt und der Zeit.
Ich bin davon überzeugt, dass sich diese doppelte Ausrichtung kirchlichen Lebens in den kommenden Jahren und Jahrzehnten noch verstärken wird, wenn Kirche „kleiner“ wird und die Selbstverständlichkeit kirchlicher Existenz in der Gegenwart mehr und mehr abnimmt. Ich rede hier nicht von Verlust und auch nicht von Aufbruch, beides sind Bilder, die etwas verklären. Ich argumentiere eher „pragmatisch“: Kirche ist da in einer qualifizierten Art und Weise in einer jeweiligen Gegenwart. Für die Zukunft gilt es, Arkanum und Weltoffenheit gleichermaßen zu achten und, wo möglich, auch in Gebäudearchitektur abzubilden.
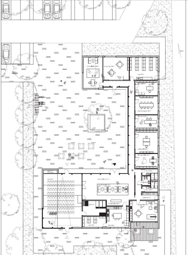
Das neue Zentrum der Ev. Kirchengemeinde Götterswickerhamm an der Rönskenstrasse in Voerde ist ein gutes Zeugnis für diese Ausrichtung. Das zeigt der Blick auf den Grundriss: ein Gebäude, dass sowohl Ort für offene Begegnung als auch für Rückzug sein kann. Ein Haus, eingepasst in seine Umgebung. Viele große Fensterfronten, die den Blick hinein und hinaus ermöglichen. Ein Innenhof umschlossen vom Zentrum, der benachbarten KiTa und dem Parkplatz, wo Menschen sich buchstäblich über den Weg laufen werden – und bestimmt auch stehen bleiben, zum Gespräch. Vielleicht gibt es hier später mal ein paar Tische und Bänke und eine Kaffee-Tankstelle, dann wird hier viel los sein.
Und hier noch das „offizielle“ Foto:

Pingback: Jahresrückblick 2018 in Bildern – bilder und gedanken